Bauvisite 134: Pichler & Traupmann Architekten | Siedlung Heustadelgasse

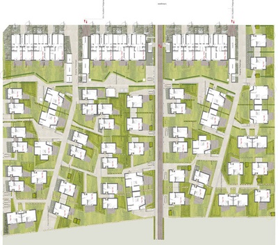
BauvisitenZwischen Gartenstadt und Schrebergarten, zwischen Reihenhaus- und Kleingartenanlage - Das Projekt von Pichler & Traupmann hat sich der städtebaulichen und architektonischen Aufgabe angenommen, für den neuerlich aktivierten Siedlungstyp eine zeitgemäße Typologie zu entwickeln.