ÖGFA_Bauvisite 211: Türkenwirtgebäude, BOKU
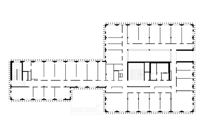
BauvisiteIn einer heterogenen Nachbarschaft bestehend aus 2- bis 3-geschoßigen Wohnbauten und vereinzelten, größeren institutionellen Strukturen fügt Baumschlager Hutter eine kompakte Holzkonstruktion hinzu.
Der Entwurf ist geprägt von einer feingliedrigen Modellierung sowie von einer mehrschichtigen Fassade. Wie die Architekten betonen, war es hier möglich, ein Projekt zu realisieren ohne das maximal erlaubte Bauvolumen auszuschöpfen. Eine besondere Raumfolge erschließt sich bei der Annäherung über den Türkenschanzpark.
Architektur: Baumschlager Hutter Partners
Planungsbeginn: 2015
Baubeginn: 2016
Fertigstellung: März 2018
Art der Beauftragung: Wettbewerb
Auftraggeber: Bundesimmobiliengesellschaft mbH
Landschaftsplanung: rajek-barosch landschaftsarchitektur Statik, Bauphysik: Buschina&Partner
Haustechnik: HL-Technik München / pgg blueberg control GmbH
Grundstücksfläche: 2.924 m2
Bebaute Fläche: 1.207 m2
Bruttogeschoßfläche: 7.779 m2
Kubatur: 29.656 m3
Nutzfläche: 3.474 m2
Es führt: Miriam Seiler

