ÖGFA_Bauvisite 204: Adaptierung und Erweiterung – Evangelisches Kirchzentrum Johanneskirche in Wien Liesing
© zeininger architekten
BauvisiteGeplant wurde nach den Grundsätzen von Gemeinwohl und Partizipation. Ein knappes Baubudget, Teilhabe der Kirchengemeinde bei der Projektentwicklung und ein partnerschaftlicher Umgang aller Beteiligten prägen das Projekt.
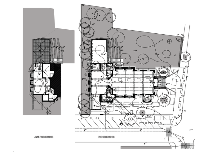
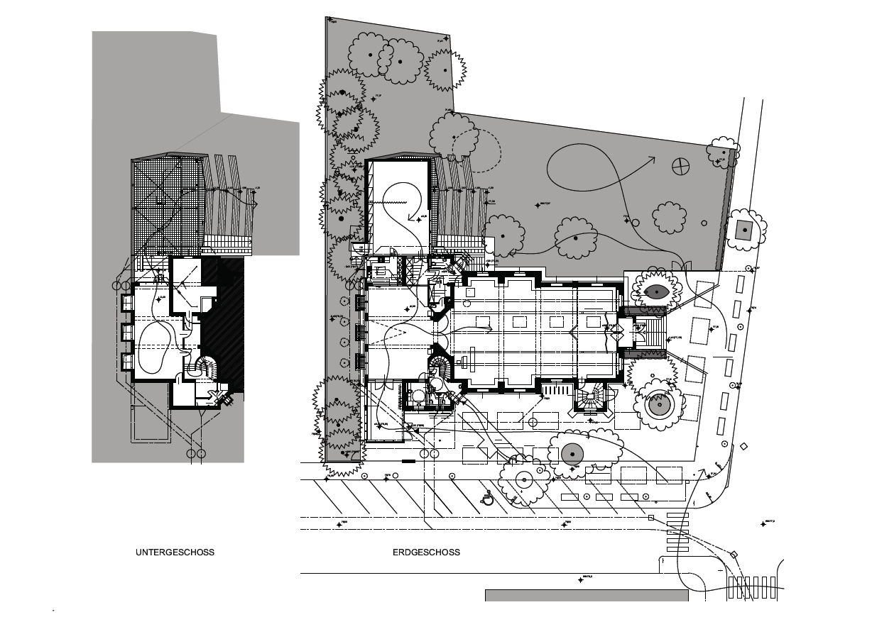
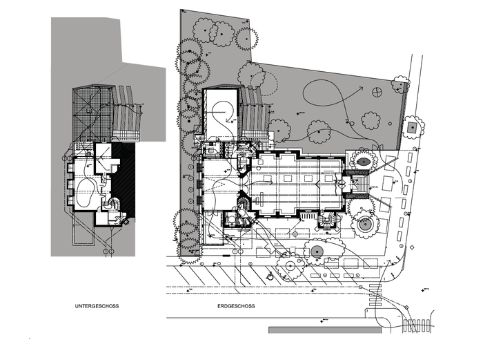
Raumprogramm: ein gesamtheitliches Konzept mit der Möglichkeit einer stufenweisen Umsetzbarkeit. Die Schaffung eines gemeinsamen, barrierefreien Zugangs zur Kirche mit ausreichend Raum für Begrüßung und Verabschiedung. Die Verbesserung der Stellung der Kirche im Stadtraum durch Schaffung einer öffentlich einsehbaren und zugänglichen Zone („neuer Kirchenplatz“). Baustufe 1: Die Hinzufügung von 2 kleinen Anbauten in Leichtbauweise an den bereits bestehenden Zubau aus den 70er Jahren, einschließlich des Vordachs im neuen Eingangsbereich und die gartenseitige Erweiterung einer abgesenkten Terrasse mit Sitzstufen für den Jugendraum im Keller. Baustufe 2: Die Erweiterung um einen neuen multifunktionalen Gemeindesaal (aufgeständerte vorgefertigte Holzbaubox) auf der Gartenseite. Baustufe 3: Neuorganisation des Kirchenraums. Empore, die ohne Funktion und den Raumcharakter des prägnanten Kirchenraums beeinträchtigt, konnte nach langen Diskussionen abgebaut werden. Damit wurde die Neuausrichtung der Kirche gegen Osten möglich.
Text: Johannes Zeininger
Architektur: © zeininger architekten
Baubeginn: Sept. 2012
Fertigstellung:
- Bauphase 1 : Feb. 2013, PL Johannes Zeininger
- Bauphase 2: Sept. 2015, PL Thomas Scheiblauer
- Bauphase 3: Okt. 2016, PL Patrick Rosenberger
Zubau (1988): Dr. Egon Bruckmann
Ursprünglicher Bau (1930-35): Henry Lutz
Nutzfläche: gesamt Innen ca. 600 m2, Terrasse überdacht ca. 100 m2, Platzgestaltung ca. 380 m2
Baukosten: insgesamt 750.000,- +USt.
Auftraggeber: Pfarrgemeinde Liesing, Evangelische Kirche A.B.
Statik: DI Kleiser | Entwurf, ZT DI Groschner | Phase 1, RWT plus ZT GmbH | Phase 2
Bauphysik und Akustik: iC-Prause DI Heinz Feix
SV Wandmalerei + Architekturoberflächen: Mag. Susanne Wutzig
SV Holzrestaurierung: Mag. Michael Formánek
Es führen: Angelika und Johannes Zeininger
