Bauvisite 144: Vienna Bio Center, Cluster St. Marx
Architektur: Boris Podrecca
Bauvisite
11
Jun
Im Jahr 2000 wurde ein EU-weiter Wettbewerb für die Einrichtung eines Forschungsgebäudes der Akademie der Wissenschaften ausgelobt, aus dem Boris Podrecca als Sieger hervorging. Er schuf mit dem Biocenter 1 einen architektonischen Organismus, der bei Bereitstellung sämtlicher Infrastrukturen gleichzeitig in hohem Maße kommunikationsfördernd wirkt.
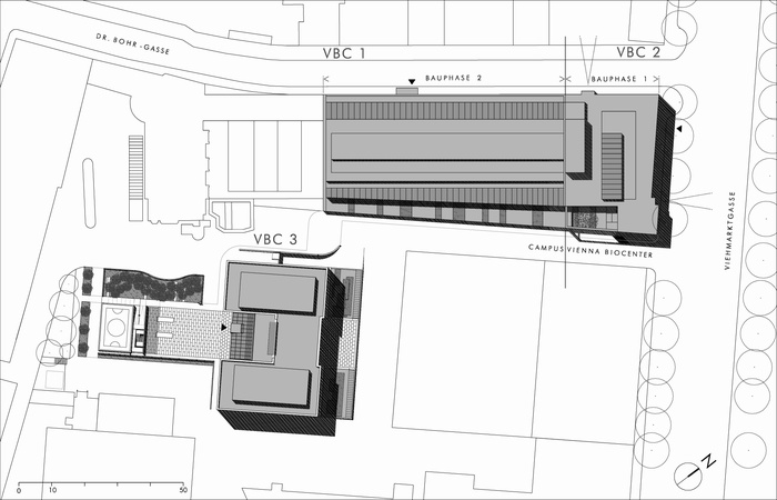
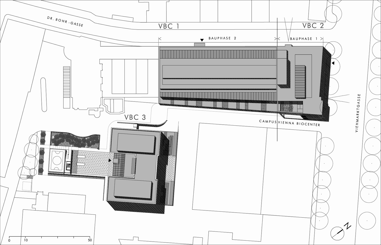
Um am hart umkämpften Markt der Biotechnologie mitmischen zu können, gelten heute kurze Wege zwischen Lehre, Forschung und Wertschöpfung. Mit dem Campus Vienna Biocenter im Wiener Stadtteil St. Marx entstand rund um den ehemaligen Schlachthof eines der größten Biotechnologie-Zentren Europas, von dem sich die Stadt Wien entscheidende Standort-Vorteile gegenüber europäischen Mitbewerbern erhofft – nicht zuletzt durch die Konzentration in städtischer Lage.
Von innen nach außen folgen Lager- und Nebenräume, die kein Tageslicht benötigen, daran angeschlossen die eigentlichen Laborbereiche und schließlich ein Gewächshaus, dessen dreigeschossige Glasfassade einen Klimapuffer für die Labors schafft.
Bei dem als Firmensitz eines Biotechnologie-Unternehmens geplanten Biocenter 3 zieht sich die scharfe Trennlinie zwischen repräsentativem Atrium und hermetisch abgeschlossenen Arbeitsbereichen.
Auch beim Biocenter 2 spiegelt sich im Entwurfskonzept die Erkenntnis wieder, dass Forschung vor allem im gemeinsamen Nachdenken beim formlosen Aufeinander-Treffen stattfindet. So gruppieren sich Hörsäle, Seminarräume, Labors und Büros um einen zentralen über alle Geschosse reichenden Luftraum, in den verglaste Besprechungsboxen hineinragen.
Um am hart umkämpften Markt der Biotechnologie mitmischen zu können, gelten heute kurze Wege zwischen Lehre, Forschung und Wertschöpfung. Mit dem Campus Vienna Biocenter im Wiener Stadtteil St. Marx entstand rund um den ehemaligen Schlachthof eines der größten Biotechnologie-Zentren Europas, von dem sich die Stadt Wien entscheidende Standort-Vorteile gegenüber europäischen Mitbewerbern erhofft – nicht zuletzt durch die Konzentration in städtischer Lage.
Von innen nach außen folgen Lager- und Nebenräume, die kein Tageslicht benötigen, daran angeschlossen die eigentlichen Laborbereiche und schließlich ein Gewächshaus, dessen dreigeschossige Glasfassade einen Klimapuffer für die Labors schafft.
Bei dem als Firmensitz eines Biotechnologie-Unternehmens geplanten Biocenter 3 zieht sich die scharfe Trennlinie zwischen repräsentativem Atrium und hermetisch abgeschlossenen Arbeitsbereichen.
Auch beim Biocenter 2 spiegelt sich im Entwurfskonzept die Erkenntnis wieder, dass Forschung vor allem im gemeinsamen Nachdenken beim formlosen Aufeinander-Treffen stattfindet. So gruppieren sich Hörsäle, Seminarräume, Labors und Büros um einen zentralen über alle Geschosse reichenden Luftraum, in den verglaste Besprechungsboxen hineinragen.
