zu Gast bei ... Holzofenbäckerei Gragger & Cie in der Spiegelgasse | Architekt DI Jürgen Radatz
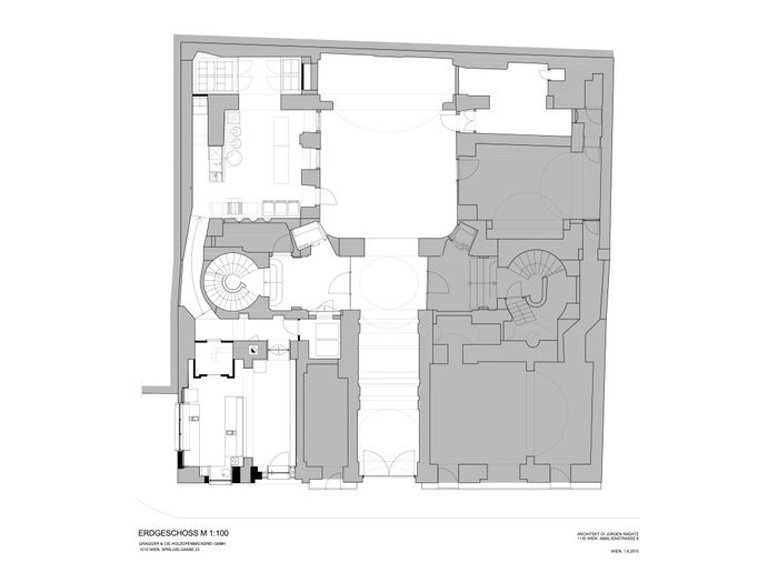
ArchitekturtageUmbau eines ehemaligen Antiquariats in eine Holzofenbäckerei in einem denkmalgeschützten Haus in der Spiegelgasse im ersten Wiener Gemeindebezirk.
Nach Abbruch der baufälligen Holzportale konnte die alte Struktur des Hauses wieder freigelegt und instand gesetzt werden. Die Integration der neuen Portale erfolgte mit Rücksicht auf die historischen Fenster- und Türproportionen. Die Eingangstür wurde unter dem markanten Halbrundfenster platziert. Auf der Feuermauerseite kann frei von historischen Vorgaben eine große Verglasung ausgeführt werden. Ein Schiebefenster in diesem Portal erlaubt den direkten Verkauf auf die Straße.
In den ehemaligen Pferdestallungen im Innenhofbereich wurde die Backstube untergebracht, straßenseitig der Verkaufsraum. Das zentrale Objekt zwischen der handwerklichen Herstellung und dem Verkauf bildet der individuell entworfene und gefertigte Holzbackofen. Dieser wird von hinten mit den Teiglingen bestückt und das fertige Backgut im Verkaufsraum vor den Augen der Kunden entnommen. An der Stehbar können diverse Backwaren, Aufstriche und Suppen vor Ort konsumiert werden. Die großzügige Verglasung der Feuermauer ermöglicht dem Besucher dabei einen tiefen Blick in den umgebenden Stadtraum.
Passend zur rein biologischen und handwerklichen Herstellung der Waren werden ausschließlich naturbelassene Materialien verwendet: Geöltes Eichenholz für die Möbel, Naturstein, Fliesen und Putz für die Wände sowie Edelstahl für die Portale. Der Holzbackofen wurde mit Ziegelsteinen verkleidet, die Backtüren aus unbehandeltem, warmgewalzten Stahl. Der Verkaufsraum wird ausschließlich über die Reflexion des Lichtes über die weiße Decke beleuchtet.
es führt: Architekt DI Jürgen Radatz
