Jubiläumsbauvisite 37: Compact City 2001
Architektur: BUSarchitektur, Rainer Lalics
BauvisiteArchitektur: BUSarchitektur (Laura P. Spinadel,Claudio J. Blazica), Rainer Lalics
Auftraggeber: SEG
Mitarbeiter: M. Jadric, A. Schmoeger, T. Kogelnig, G. Müller, H. Niessner, D. Schwaag, M. El Khafif, K. Nabielek, C. Nuhsbaumer, Y.
Haberlandt, S. Pfefferle, T. Lüdtke, K. Rätzsch, P.Krähenbühl, N. Berger
Statiker: Kollitsch & Stanek, Ewald Pachler
Verkehrsplanung: Rosinak & Partner
Bauphysik: Pfeiler GmbH, Graz
Haustechnik: VÖS
Es führt Laura Spinadel.
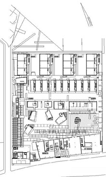
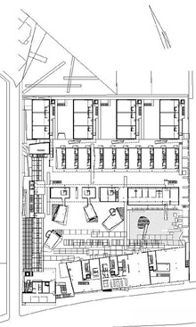
Genau zwischen den Bezirkszentren von Floridsdorf und Donaustadt, in einer Umgebung von Industrieanlagen,Gärtnereien, neueren Wohnbauten und dem Campus der Veterinärmedizinischen Universität entstand 1999 bis 2001 die „Compact City“, eine Anlage mit 59 Wohnungen sowie Büros, Ateliers, Werkstätten, Geschäften und Lokalen auf insgesamt 10.000 m2. Ziel des Projektes war es, diese verschiedenen Nutzungen intensiv zu verflechten und zu überlagern, um so ein städtisches Umfeld zu schaffen. Die gerade auch bei Wiener Wohnbauprojekten immer wieder bemängelte fehlende Nutzungsmischung und Vielfalt wird hier nicht durch kleine Parzellen, sondern im Rahmen eines Projektes für einen Bauträger hergestellt. Das Zentrum der Anlage bildet eine erhöhte urbane Platte, die von Wohn- und Bürozeilen sowie Pavillons mit Geschäftsnutzungen umrahmt wird. Zielgruppe waren so genannte Young Urban Professionals, für die die Nähe von Wohnen und Arbeiten, von Freizeit und Geschäft eine große Bedeutung besitzt – im Rahmen eines WWFF-geförderten Pilotprojekts wurde den Büroflächen ein speziell an Jungunternehmer und kleine Selbstständige gerichtetes Angebot zur Seite gestellt mit Konferenzraum-Sharing, Sekretariats-Service usw. Dadurch sollte eine Creative-Industries-Nutzung möglich werden, deren Ort eigentlich die dichte historische Stadt mit ihren intensiven Netzwerken wäre. Der Realisierung ging ein Pilotprojekt unter dem Titel „Homeworkers“ voran, das 1998 mit dem Otto-Wagner-Städtebaupreis ausgezeichnet worden war.
